Extracto de los planos de rehabilitación del edificio
Informació municipal

Barcelona destina gairebé 2 milions d'euros de fons europeus a rehabilitar un edifici ‘social’ que va comprar Colau.

L'immoble, amb 11 habitatges, va ser comprat per Colau el 2018, però mai es va arribar a rehabilitar, té 4 pisos buits, humitats i risc petit de despreniments

Cop als morosos municipals: Barcelona contracta una empresa per investigar les seves propietats

Leer en Castellano
Publicada

L'Ajuntament de Barcelona ha contractat a la companyia Novantia Integral per rehabilitar un edifici al carrer Aragó (xamfrà amb Girona) amb 11 habitatges. Al juny de 2018, l'edifici va ser rescatat pel consistori barceloní. Se'l va treure de les mans de la financera Buildingcenter aplicant el dret de tanteig que permet a una Administració a quedar-se amb un bé pagant la mateixa quantitat per la qual se l'havia quedat un particular.

El motiu de l'operació era incrementar el parc de lloguer públic de la ciutat aplicant el dret aludit en un procés d'execució hipotecària. Amb això, pretenia donar opció als inquilins a poder seguir residint en els pisos afectats amb un lloguer assequible.

Pisarello saca pit

Els números municipals indicaven que, amb aquesta operació, a l'Eixample ja hi havia 45 immobles comprats per a lloguer social. En aquell moment, el tinent d'alcalde, Gerardo Pisarello, es van vanagloriar que la compra de l'edifici "multiplica per cinc el parc públic d'habitatge en aquest districte".

A més, hi havia altres 111 pisos en obres i 266 habitatges en projecte, de diferents tipologies per destinar-los a lloguer. Segons el consistori, aquests 45 immobles provenien del rescat de pisos en operacions privades, recuperats "de fons voltors amb la voluntat de destinar-los a lloguer social".

Extracte del projecte de rehabilitació

Extracte del projecte de rehabilitació AJUNTAMENT DE BARCELONA

Ada Colau era llavors l'alcaldessa (estava en el seu primer mandat) i, encara que havia promès solucionar el problema de l'habitatge i posar en el mercat 8.000 nous pisos de lloguer social, la cosa no marxava com s'havia previst. Més tard, va rebaixar les seves pretensions i va parlar de posar en marxa en aquella legislatura 66 promocions d'habitatge que sumaven 4.547 pisos. Tampoc es va complir aquella promesa.

Els pisos reals

Però, malgrat els aparentment bons propòsits, mai es va arribar a una xifra mínimament acceptable. En tota la legislatura es van acabar només 720 immobles, si bé es van fer gestions per construir-ne més: quan van arribar les noves eleccions hi havia 12 promocions amb 514 llistos en construcció, 30 promocions amb 2.378 pisos en fase de projecte (ja s'havia convocat licitació per redactar el projecte) i 17 promocions amb 1.065 pisos però que només tenien reserva de sòl.

En total, doncs, 4.677 habitatges públics en diferents graus de construcció. Al 2023, els construïts ascendien a 1.500, als quals calia sumar altres 1.500 cedits per Sareb o bancs i 1.000 captats de particulars. En aquell moment, hi havia també 1.900 en obres i 2.100 previstos però sense iniciar procediments. En total, entre comprats i de nova construcció no arribaven als 8.000 promesos per a la primera legislatura.

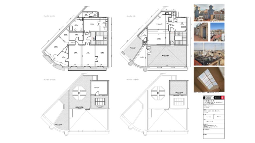
Projecte de rehabilitació de l'edifici

Projecte de rehabilitació de l'edifici AJUNTAMENT DE BARCELONA

Quant a adquisició de pisos en el mercat privat, des del 2015 al 2022, el consistori es va fer amb 1.349 habitatges, entre els quals es troben 43 finques senceres.  Però el problema és el manteniment i, en la majoria dels casos, la rehabilitació.

L'edifici del carrer Aragó està en aquests moments en una situació de deteriorament tal que cal una rehabilitació integral, que costarà gairebé tant com el muntant de la compra. L'operació de 2018 va costar als arxius municipals un total de 2 milions d'euros. La rehabilitació de 2025 costarà a la hisenda pública 1.862.607 euros.

Diners europeus

En realitat, el pressupost per a l'execució de l'obra superava els dos milions d'euros, però es va obrir concurs, es van presentar quatre ofertes i va guanyar la de la companyia Novantia Integral, que va ser la més econòmica. Per cobrir aquest muntant, l'Ajuntament eixugarà de fons del Mecanisme del Pla de Recuperació, Transformació i Resiliència de la UE, és a dir, dels Fons Next Generation.

Segons el voluminós projecte de rehabilitació, cal recuperar la galeria interior i restaura les escales, col·locar un nou ascensor, restaurar cobertes, instal·lacions, la façana principal i els propis immobles, a més d'enderrocar alguns volums fora d'ordenança.

Extracte del projecte de rehabilitació de l'edifici

Extracte del projecte de rehabilitació de l'edifici AJUNTAMENT DE BARCELONA

La façana, segons els informes realitzats pels tècnics, té un bon estat de conservació, tot i que hi ha envelliment del parament i presenta algunes esquerdes puntuals. També l'escala té un estat acceptable.

L'edifici data de 1889 i té una superfície total de 840 metres quadrats. L'edat de l'edifici ha agreujat algunes de les seves patologies. Per exemple, el pitjor conservat és la galeria interna, on s'ha observat perill de desprendiments.

Extracte de rehabilitació de l'edifici

Extracte de rehabilitació de l'edifici AJUNTAMENT DE BARCELONA

Les esquerdes en elements de fusta i els porticons provoquen filtracions d'aigua a l'interior dels pisos quan plou. A més de fissures i esquerdes en sostres falsos i canonades, hi ha humitats en gairebé tots els pisos.

La constructora ha de començar la rehabilitació en els pròxims dies i disposa de 16 mesos per acabar-les. El desviament pressupostari per imprevistos no podrà excedir del 10% del preu de l'adjudicació.

*Aquest article ha estat traduït automàticament utilitzant intel·ligència artificial