Render del nuevo parque para niños a un paso de la Sagrada Família

Render del nuevo parque para niños a un paso de la Sagrada Família Ayuntamiento de Barcelona

Eixample

El nuevo parque para niños a un paso de la Sagrada Família: casi 1.500 m2 de zonas verdes y juegos

Barcelona aprueba la remodelación de los Jardines de Beatriu de Provença para albergar una nueva área infantil con árboles entre las calles Mallorca, Provença, Nápoles y Sicilia

Relacionado: La Sagrada Família de Barcelona se podrá visitar gratis este febrero: cómo conseguir las entradas

Llegir en Català
Publicada

Noticias relacionadas

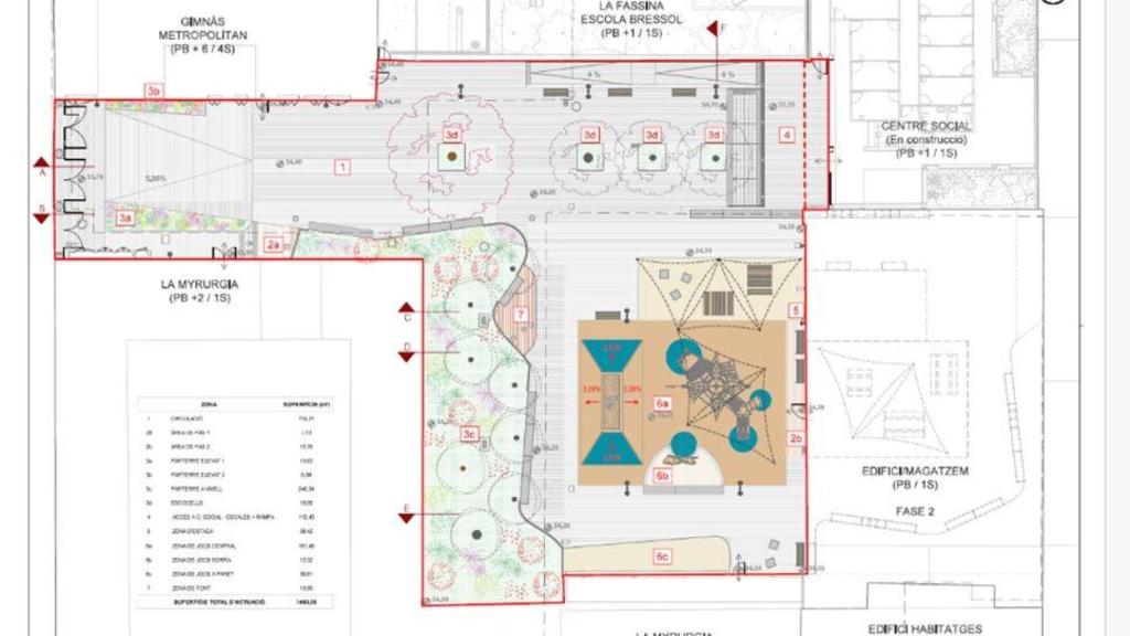
El barrio de la Sagrada Família sumará un nuevo parque antes de finalizar el año. El distrito del Eixample ha dado luz verde a la remodelación de los Jardines de Beatriu de Provença, en el interior de la manzana situada entre las calles Mallorca, Provença, Nápoles y Sicilia.

Este espacio, que da acceso a varios equipamientos públicos, contará con nuevas zonas de estancia con sombra y vegetación, así como una nueva área de juegos infantiles

En total, el espacio mide 1.463 metros cuadrados, pero se prevé que se amplíe en 500 metros cuadrados más en una segunda fase.

Cinco meses de obras

Según ha informado el Ayuntamiento de Barcelona, las obras durarán cinco meses, con la previsión de que empiecen a mediados de año y terminen antes de 2027.

La actuación cuenta con un presupuesto de casi un millón de euros.

Cómo serán los jardines

El proyecto prevé reorganizar el espacio que da acceso a la escuela infantil La Fassina y al Centro de Servicios Sociales, incorporando plantas trepadoras en la fachada del gimnasio, y añadir toldos en aquellas zonas donde el subsuelo no permita plantar árboles.

Plano de la remodelación de los Jardines de Beatriu de Provença que albergarán un nuevo parque al lado de la Sagrada Família

Plano de la remodelación de los Jardines de Beatriu de Provença que albergarán un nuevo parque al lado de la Sagrada Família Ayuntamiento de Barcelona

También se plantará un árbol de gran porte frente a la entrada de la escuela infantil, alineado con los tres árboles existentes que siguen el camino hacia el Centro de Servicios Sociales.

La zona central de actividades acogerá tanto el área de juegos como la de estancia y estará hecha de caucho. Además, habrá un arenero en la parte infantil.

Por el perímetro, se ubicará un área más orgánica con más árboles y arbustos.

En cuanto a los pavimentos, está previsto que las zonas de acceso, circulación y alrededor de la fuente tengan pavimento de losas prefabricadas de hormigón.