Extracto de los planos de rehabilitación del edificio

Extracto de los planos de rehabilitación del edificio AYUNTAMIENTO DE BARCELONA

Información municipal

Barcelona destina casi 2 millones de euros de fondos europeos a rehabilitar un edificio ‘social’ que compró Colau

El inmueble, con 11 viviendas, fue comprado por Colau en 2018, pero nunca se llegó a rehabilitar, tiene 4 pisos vacíos, humedades y riesgo pequeño de desprendimientos

Golpe a los morosos municipales: Barcelona contrata a una empresa para investigar sus propiedades

Leer en Catalán
Publicada

El Ayuntamiento de Barcelona ha contratado a la compañía Novantia Integral para rehabilitar un edificio en la calle Aragó (chaflán con Girona) con 11 viviendas. En junio de 2018, el edificio fue rescatado por el consistorio barcelonés. Se lo sacó de las manos a la financiera Buildingcenter aplicando el derecho de tanteo que permite a una Administración a quedarse con un bien pagando la misma cantidad por la que se lo había quedado un particular.

El motivo de la operación era incrementar el parque de alquiler público de la ciudad aplicando el derecho aludido en un proceso de ejecución hipotecaria. Con ello, pretendía dar opción a los inquilinos a poder seguir residiendo en los pisos afectados con un alquiler asequible.

Pisarello saca pecho

Los números municipales indicaban que, con esa operación, en el Eixample había ya 45 inmuebles comprados para alquiler social. En aquel momento, el teniente de alcalde, Gerardo Pisarello, alardeó de que la compra del edificio “multiplica por cinco el parque público de vivienda en este distrito”.

Además, había otros 111 pisos en obras y 266 viviendas en proyecto, de diferentes tipologías para destinarlos a alquiler. Según el consistorio, esos 45 inmuebles provenían del rescate de pisos en operaciones privadas, recuperados “de fondos buitres con la voluntad de destinarlas a alquiler social”.

Extracto del proyecto de rehabilitación

Extracto del proyecto de rehabilitación AYUNTAMIENTO DE BARCELONA

Ada Colau era entonces la alcaldesa (estaba en su primer mandato) y, aunque había prometido solucionar el problema de la vivienda y poner en el mercado 8.000 nuevos pisos de alquiler social, la cosa no marchaba como se había previsto. Más tarde, rebajó sus pretensiones y habló de poner en marcha en esa legislatura 66 promociones de vivienda que sumaban 4.547 pisos. Tampoco se cumplió esa promesa.

Los pisos reales

Pero, pese a los aparentemente buenos propósitos, nunca se llegó a una cifra medianamente aceptable. En toda la legislatura se terminaron solo 720 inmuebles, si bien se hicieron gestiones para construir más: cuando llegaron las nuevas elecciones había 12 promociones con 514 lisos en construcción, 30 promociones con 2.378 pisos en fase de proyecto (ya se había convocado licitación para redactar el proyecto) y 17 promociones con 1.065 pisos pero que sólo tenían reserva de suelo.

En total, pues, 4.677 viviendas públicas en distintos grados de construcción. En 2023, los construidos ascendían a 1.500, a los que había que sumar otros 1.500 cedidos por Sareb o bancos y 1.000 captados de particulares. En ese momento, había también 1.900 en obras y 2.100 previstos pero sin iniciar procedimientos. En total, entre comprados y de nueva construcción no llegaban a los 8.000 prometidos para la primera legislatura.

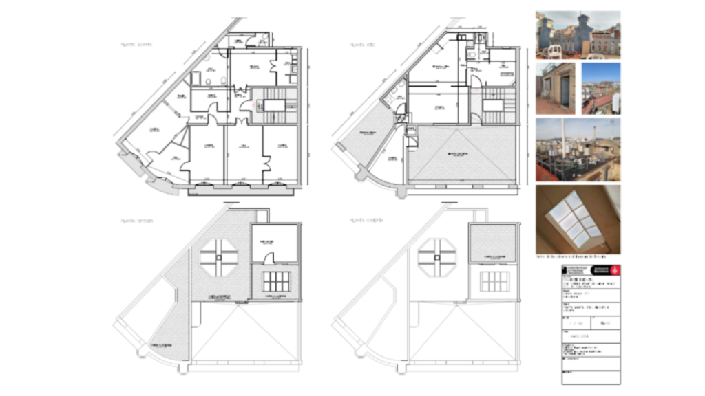
Proyecto de rehabilitación del edificio

Proyecto de rehabilitación del edificio AYUNTAMIENTO DE BARCELONA

En cuanto a adquisición de pisos en el mercado privado, desde 2015 a 2022, el consistorio se hizo con 1.349 viviendas, entre las que se encuentran 43 fincas enteras.  Pero el problema es el mantenimiento y, en la mayoría de los casos, la rehabilitación.

El edificio de la calle Aragón está en estos momentos en una situación de deterioro tal que se hace necesaria una rehabilitación integral, que costará casi tanto como el monto de la compra. La operación de 2018 costó a las arcas municipales un total de 2 millones de euros. La rehabilitación de 2025 costará a la hacienda pública 1.862.607 euros.

Dinero europeo

En realidad, el presupuesto para la ejecución de la obra superaba los dos millones de euros, pero se abrió concurso, se presentaron cuatro ofertas y ganó la de la compañía Novantia Integral, que fue la más económica. Para cubrir este monto, el Ayuntamiento echará mano de los fondos del Mecanismo del Plan de Recuperación, Transformación y Resiliencia de la UE, es decir, de los Fondos Next Generation.

Según el voluminoso proyecto de rehabilitación, es preciso recuperar la galería interior y restaurar las escaleras, colocar un nuevo ascensor, restaurar cubiertas, instalaciones, la fachada principal y los propios inmuebles, además de derribar algunos volúmenes fuera de ordenanza.

Extracto del proyecto de rehabilitación del edificio

Extracto del proyecto de rehabilitación del edificio AYUNTAMIENTO DE BARCELONA

La fachada, según los informes realizados por los técnicos, tiene un buen estado de conservación, aunque hay envejecimiento del paramento y presenta algunas grietas puntuales. También la escalera tiene un estado aceptable.

El edificio data de 1889 y tiene una superficie total de 840 metros cuadrados. La edad del edificio ha agravado algunas de sus patologías. Por ejemplo, lo peor conservado es la galería interna, donde se ha observado peligro de desprendimientos.

Extracto de rehabilitación del edificio

Extracto de rehabilitación del edificio AYUNTAMIENTO DE BARCELONA

Las grietas en elementos de madera y los porticones provocan filtraciones de agua en el interior de los pisos cuando llueve. Además de fisuras y grietas en falsos techos y cañerías, hay humedades en casi todos los pisos.

La constructora ha de comenzar la rehabilitación en los próximos días y dispone de 16 meses para finalizarlas. El desvío presupuestario por imprevistos no podrá exceder del 10% del precio de la adjudicación.